




































Se vinde casă nouă, modernă, situată în centrul orășelului Cricova, într-o zonă liniștită, pe o stradă retrasă, cu puțini vecini.
Accesul spre casă este asfaltat, iar casa este conectată la apă și canalizare centralizată.
Casa este construită din cărămidă roșie, cu pereți exteriori și interiori solizi.
Este bine izolată: 10 cm la pereți și 20 cm la acoperiș. Geamurile sunt de calitate germană, cu 7 camere și 3 sticle, asigurând confort termic și fonic.
Casa dispune de o terasă spațioasă, o zonă liberă spre amenajare în spatele casei. Puteți monta un foișor și un bazin, la dorință.
Terenul de 4,4 ari este bine zonat și are o locație centrală în orășelul Cricova, str. Decebal.
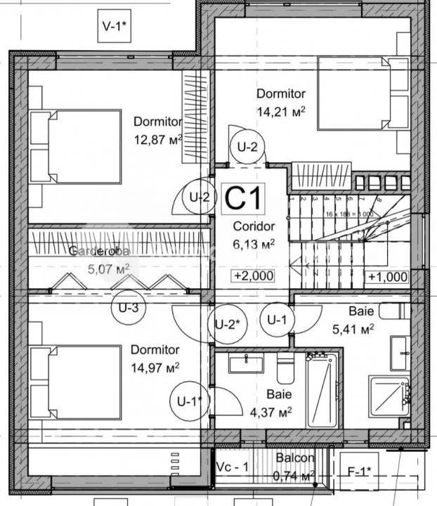
Suprafața locativă a casei constituie 130 mp.
Compartimentare:
* Living cu bucătărie open space
* Dormitor matrimonial cu garderobă și baie proprie
* 2 dormitoare pentru copii
* 3 băi în total
O casă practică și bine construită, cu materiale bune, ideală pentru o familie, la un preț corect.
Nu rata ocazia de a locui într-o casă modernă, eficientă energetic și cu finisaje de top!
Prețul:
* Datele financiare sunt aproximative și pot varia în funcție de instituția financiară.