
























Proprietate deosebită situată în Centrul Istoric al municipiului Chișinău, într-o zonă cu valoare arhitecturală și investițională ridicată. Casa a fost construită la începutul secolului XX, în stil eclectic cu influențe de modern, și este aliniată la linia stradală, conform tipologiei istorice a zonei.
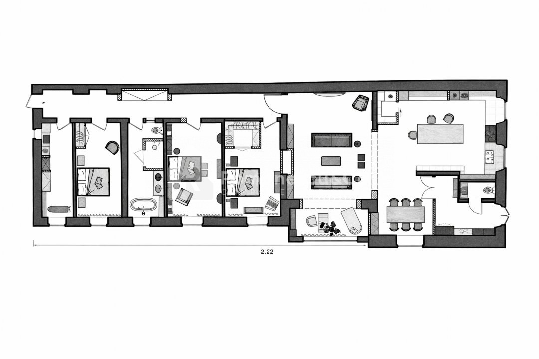
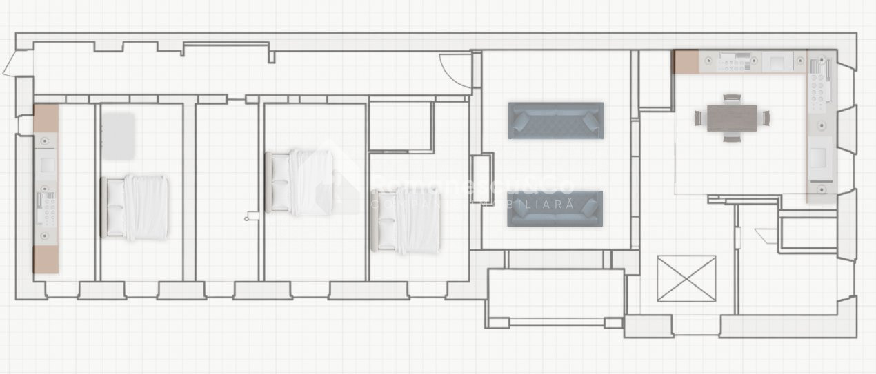
Imobilul are o suprafață locativă de 251 mp și este dezvoltat pe parter, cu mansardă amenajată. Compartimentarea este funcțională și echilibrată, incluzând trei dormitoare, salon generos, două băi și spații auxiliare. În partea din spate se află curte proprie, iar proprietatea dispune de beci moldovenesc.
Casa a fost supusă unei restaurări capitale complete, inclusiv interior și acoperiș, toate lucrările fiind realizate conform proiectului de design, cu utilizarea materialelor premium. Finisajele includ parchet din stejar din Italia, teracotă din Spania, vopsea Benjamin Moore, încălzire prin pardoseală în toate încăperile și acoperiș de producție suedeză.
Datorită amplasării, arhitecturii și calității execuției, proprietatea este ideală atât pentru reședință exclusivă, cât și pentru investiție, fiind potrivită pentru sediu de companie, reprezentanță, birouri sau activități comerciale premium.
Oportunitate rară în Centrul Istoric al Chișinăului.
Pentru detalii suplimentare și vizionare, vă rugăm să ne contactați.
Prețul:
* Datele financiare sunt aproximative și pot varia în funcție de instituția financiară.